- Schwarzes Brett
- Angebote
- Wohnungs- / Mietangebote
- Neu Bau KfW 40 DG 100 M2 in Grambke 1400 Euro
Neu Bau KfW 40 DG 100 M2 in Grambke 1400 Euro
Datum: 26.03.26
Name: Julia
Neubau – Erstbezug.
Im Bremer Stadtteil Grambke entsteht derzeit ein modernes Mehrfamilienhaus mit vier Wohneinheiten im energieeffizienten KfW-40+-Standard.
Die angebotene Wohnung überzeugt durch eine durchdachte Raumaufteilung sowie eine hochwertige Ausstattung.
Die Wohnräume sind mit pflegeleichtem Vinylboden ausgestattet und verfügen über eine Fußbodenheizung, die für ein angenehmes Raumklima sorgt.
Großzügige Fensterflächen mit elektrischen Jalousien unterstreichen das moderne Wohngefühl. Das Tageslichtbad ist mit einer Dusche ausgestattet. Eine hochwertige, neu eingebaute Einbauküche mit moderner Ausstattung rundet das attraktive Wohnangebot ab.
Besonderes Augenmerk liegt auf der Kombination aus Wärmepumpe und zentraler Lüftungsanlage. Während die Lüftung Wärmeverluste reduziert, sorgt die Wärmepumpe für eine effiziente Beheizung – gemeinsam entsteht ein besonders energieeffizientes Gesamtsystem.
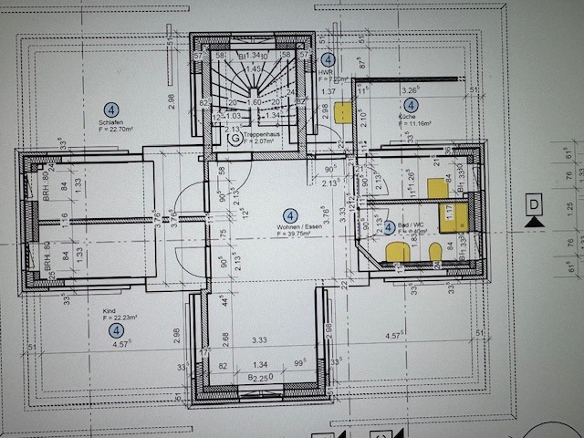
Dachgeschoss mit großzügiger Wohnfläche.
A. Allgemein
• Neubau-Mehrfamilienhaus im KfW-40+ Standard
• ca. 108 m² Wohnfläche mit Schriegel
• 3 Zimmer (2 große Schlafzimmer, großzügiges Wohnzimmer und separate Küche)
• Dachgeschoss
• großerzügig
________________________________________
B. Ausstattungsdetails
• Energieeffizienzhaus KfW 40+
• Zentrale Lüftungsanlage
• Hochwertiger Vinylboden
• Komfortable Fußbodenheizung
• Elektrische Jalousien
• Modernes Tageslichtbad mit Dusche
• Moderne Einbauküche
• Hauswirtschafts- / Abstellraum
________________________________________
C. Anmietungsmodalitäten
• 1400 € monatliche Kaltmiete
• ca. 225 € monatliche Nebenkosten
• Mietkaution: 3 Kaltmieten
• Verfügbar ab dem 01.Juni/Juli.2026
In den Nebenkosten sind bereits die Kosten für Grundsteuer, Gebäudeversicherung, Heizung und Müllentsorgung enthalten. Strom und Wasser werden direkt mit dem Versorger (SWB) abgerechnet.
Kombination aus Wärmepumpe und zentraler Lüftung
• Sehr niedriger Energieverbrauch und geringe Heizkosten
• Umweltfreundliche, zukunftssichere Heiztechnik
• Gleichmäßige, angenehme Wärmeverteilung
• Stets frische Luft durch kontrollierte Lüftung
• Reduzierte Wärmeverluste dank Wärmerückgewinnung
• Verbesserter Feuchteschutz, geringeres Schimmelrisiko
• Hoher Wohnkomfort bei hoher Energieeffizienz
• Gefilterte Luft (z. B. Pollen) – ideal für Allergiker
Lage
Die Immobilie befindet sich im beliebten Bremer Stadtteil Grambke, der durch seine ruhige und grüne Umgebung überzeugt. Die Nähe zu weitläufigen Natur- und Wasserflächen bietet einen hohen Freizeit- und Erholungswert.
Gleichzeitig profitieren Sie von einer guten Infrastruktur mit Einkaufsmöglichkeiten, Schulen und Kindergärten in der Umgebung sowie einer schnellen Anbindung an die Bremer Innenstadt und die Autobahn A27.
•
Angaben zur Energieausweispflicht nach §16a EnEV:
40
